Мы используем файлы cookie
и системы аналитики для улучшения работы сайта
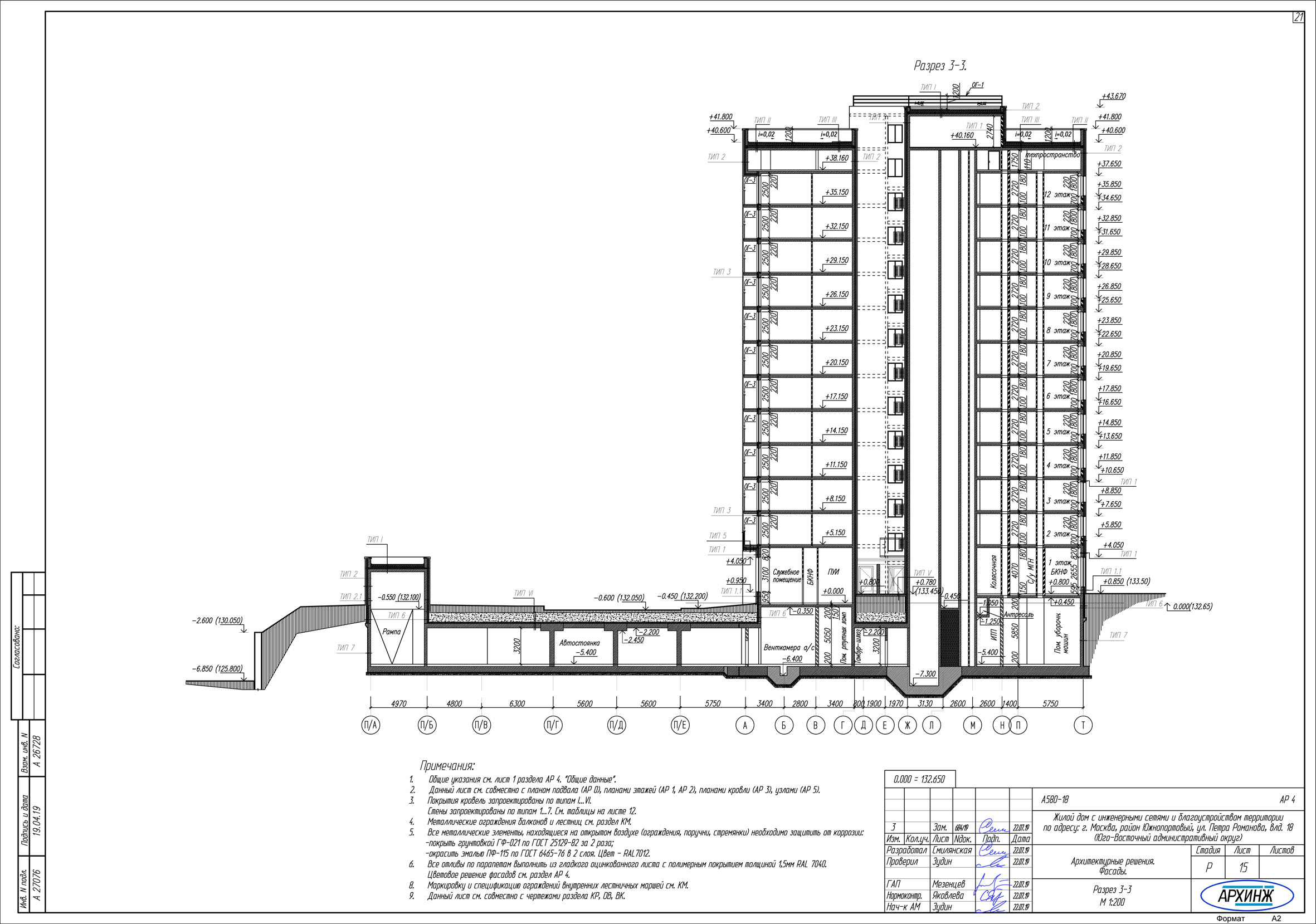
Жилой дом по программе реновации по адресу: ул. Петра Романова, 6
Участие в разработке стадии Буклет, П и РД.